AW-16942277428 Woodland Oak Cabin Kit

The Woodland Oak Cabin Kit

1400 square feet

Schutt Log Homes & Mill Works
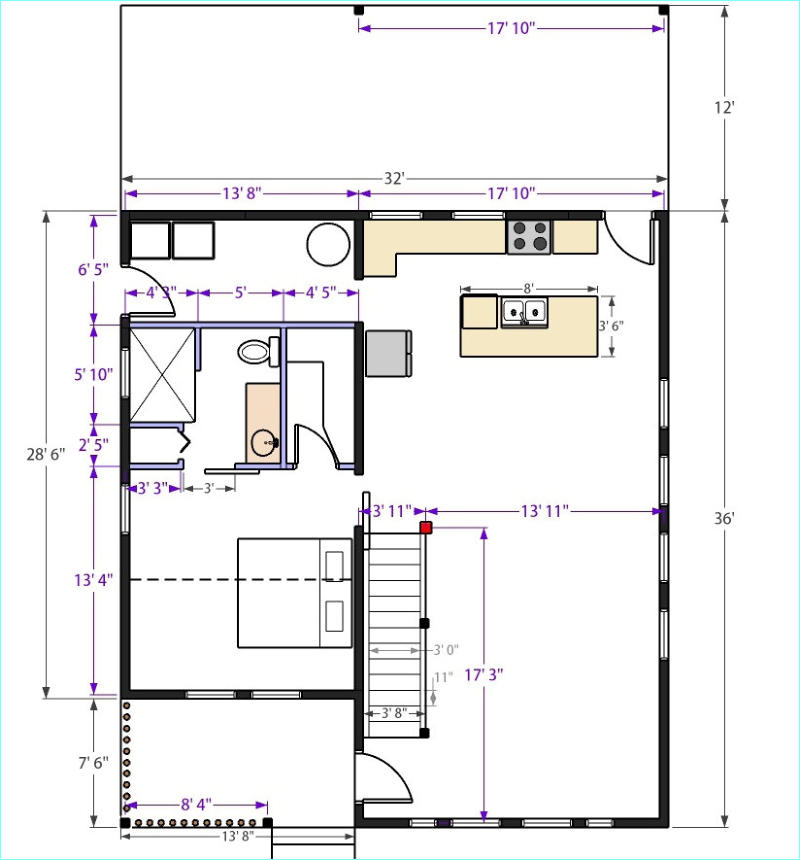
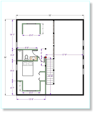
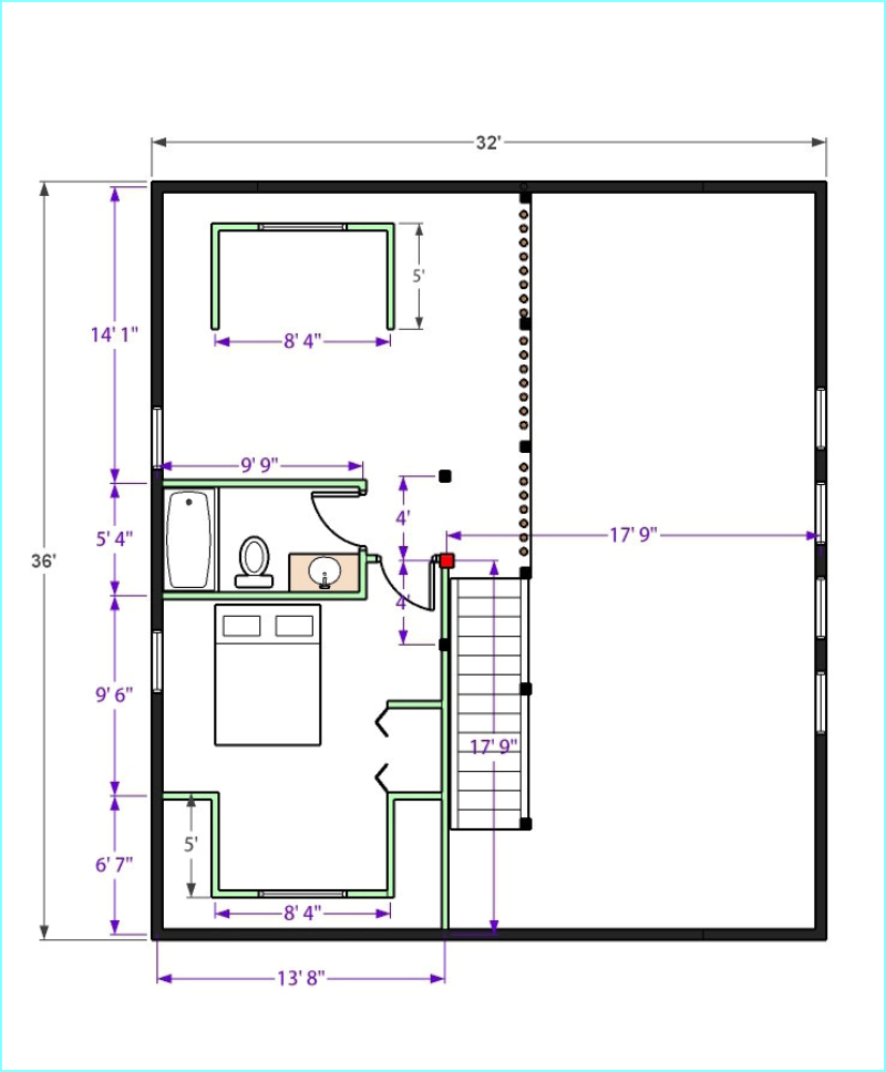
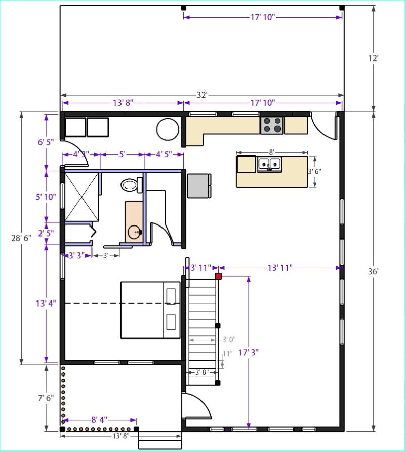
This versatile 1400 sq ft Woodland Oak cabin kit offers the perfect blend of comfort and functionality. Ideal for families or couples seeking a getaway retreat, it boasts two spacious bedrooms and two full baths. The open floor plan seamlessly integrates the living room, kitchen, and dining area, fostering a sense of togetherness. Unwind on the inviting covered back porch, enjoying the fresh air and scenic views. The rear of the cabin features a convenient entryway leading to the laundry room and half bath, ideal for keeping gear organized. The option to build on a slab or basement allows you to customize the cabin to your needs.

The Woodland Oak Cabin Kit

1400 square feet

Schutt Log Homes & Mill Works      816-506-5713
This versatile 1400 sq ft Woodland Oak cabin kit offers the perfect blend of comfort and functionality. Ideal for families or couples seeking a getaway retreat, it boasts two spacious bedrooms and two full baths. The open floor plan seamlessly integrates the living room, kitchen, and dining area, fostering a sense of togetherness. Unwind on the inviting covered back porch, enjoying the fresh air and scenic views. The rear of the cabin features a convenient entryway leading to the laundry room and half bath, ideal for keeping gear organized. The option to build on a slab or basement allows you to customize the cabin to your needs.
Schutt Log Homes & Mill Works