AW-16942277428 Hybrid Timber Frame
Schutt Log Homes & Mill Works      816-506-5713
Discover the perfect fusion of classic timber framing and modern design with our Hybrid Timber Frame House kit. This innovative home combines the timeless beauty of traditional timber frame construction with contemporary architectural elements, offering a unique and stylish living space that meets the demands of today’s homeowners. Our Hybrid Timber Frame House is crafted using premium oak timbers, showcasing the strength and beauty of traditional timber frame construction. The exposed beams and joinery highlight expert craftsmanship and add a touch of rustic elegance to the home's interior and exterior. While rooted in classic building techniques, the Hybrid Timber Frame House features a modern architectural design that includes open floor plans, expansive windows, and sleek lines. This blend of old and new creates a harmonious living environment that is both functional and aesthetically pleasing. Tailor your Hybrid Timber Frame House to fit your specific needs with customizable floor plans and design options. Choose from various room configurations, additional features such as loft spaces or extra bedrooms, and personalized finishes to create a home that reflects your unique style and requirements.
Chalet- Hybrid Timber Frame House-1280 sq ft

Hybrid Timber Frame House

Schutt Log Homes & Mill Works
A few construction pictures Hybrid timber frame house
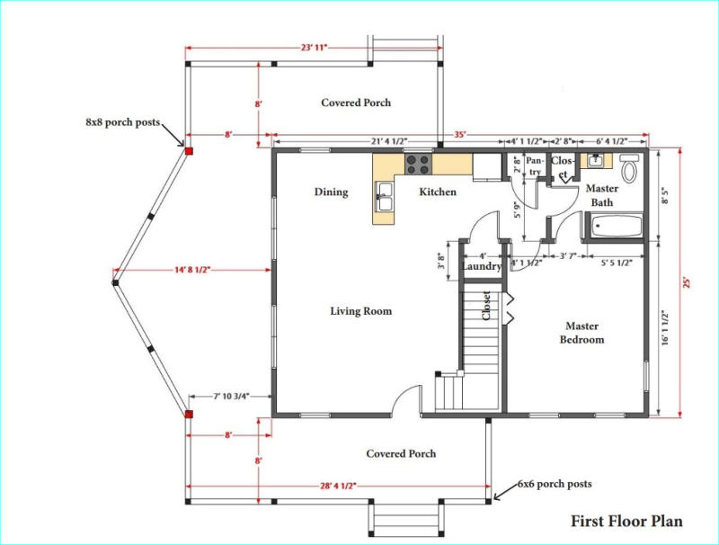
Truman Hybrid Timber Frame House -2200 sq ft Main floor- 1434 sq ft second floor-766 sq ft
Hybrid Timber Frame House- Option 2- 2016 sq ft- Hybrid Timber Frame House- Option 1- 1980 sq ft
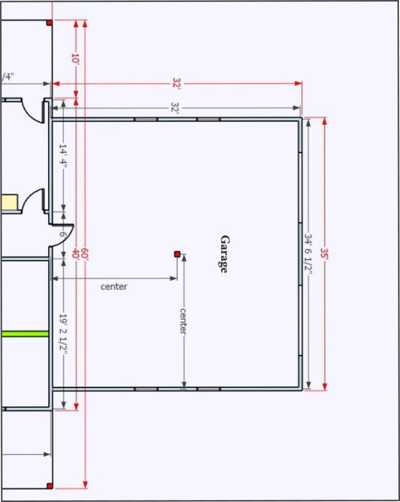
Hybrid Timber Frame House- Option 3 Main floor- 2400sq ft Loft- 1000 sq ft 2 Car Garage
Schutt Log Homes & Mill Works      816-506-5713
Schutt Log Homes & Mill Works

Hybrid Timber Frame Home Kit

Discover the perfect fusion of classic timber framing and modern design with our Hybrid Timber Frame House kit. This innovative home combines the timeless beauty of traditional timber frame construction with contemporary architectural elements, offering a unique and stylish living space that meets the demands of today’s homeowners. Our Hybrid Timber Frame House is crafted using premium oak timbers, showcasing the strength and beauty of traditional timber frame construction. The exposed beams and joinery highlight expert craftsmanship and add a touch of rustic elegance to the home's interior and exterior. While rooted in classic building techniques, the Hybrid Timber Frame House features a modern architectural design that includes open floor plans, expansive windows, and sleek lines. This blend of old and new creates a harmonious living environment that is both functional and aesthetically pleasing. Tailor your Hybrid Timber Frame House to fit your specific needs with customizable floor plans and design options. Choose from various room configurations, additional features such as loft spaces or extra bedrooms, and personalized finishes to create a home that reflects your unique style and requirements.
A few construction pictures Hybrid timber frame house
Chalet- Hybrid Timber Frame House-1280 sq ft
Truman Hybrid Timber Frame House -2200 sq ft Main floor- 1434 sq ft second floor-766 sq ft
Hybrid Timber Frame House- Option 2- 2016 sq ft-
Hybrid Timber Frame House- Option 1- 1980 sq ft
Hybrid Timber Frame House- Option 3 Main floor- 2400sq ft Loft- 1000 sq ft 2 Car Garage